ABIS International played an integral role in the CCV Line Tower Design,
contributing technical expertise and project management support throughout its development.
Start your factory with us
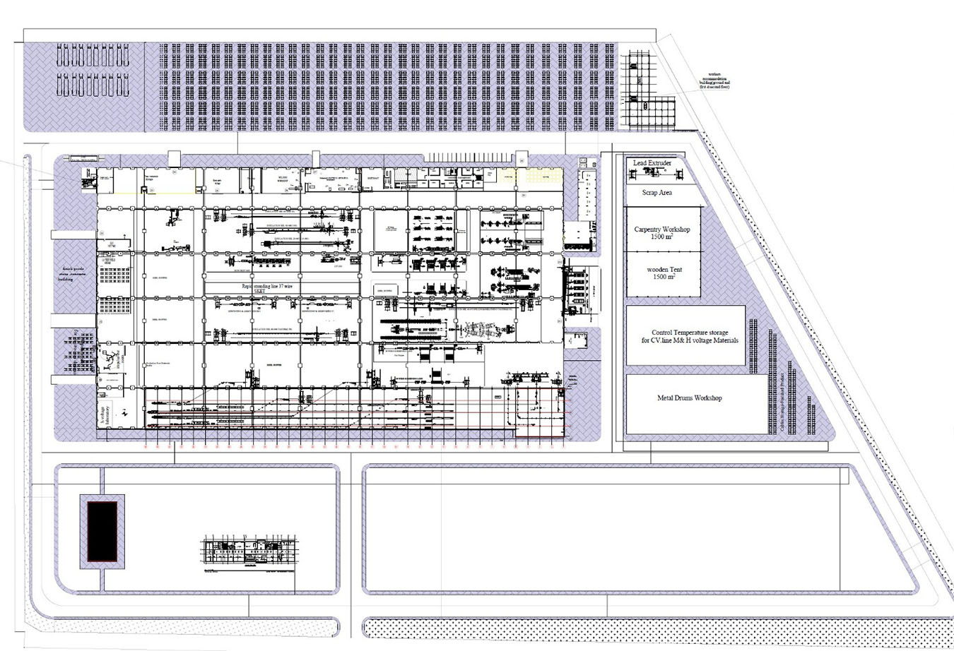
We design custom cables factory layouts and develop integrated systems, covering processes from drawing and stranding to CCV lines. our experienced team has designed the layout for four different cable factories.
We provide comprehensive post-installation support to ensure your cable manufacturing facility continues to operate at peak efficiency. Our services include process troubleshooting and development, and Quality Assessment & Compliance Audits.
to conduct a comprehensive engineering study and supervise all stages of setting up cable and ceramic tile factories
We are the official representative of Electric Cable Compounds (ECC) in the Middle East, Gulf Region and North Africa
American & British Industrial Solutions Ltd is a specialist engineering consultancy that delivers precision-engineered solutions for the global cable manufacturing industry—from custom cable factory layouts to integrated utility systems and advanced production lines, covering the entire process from drawing and stranding to CCV lines. We provide end-to-end support from design to installation supervision.
At ABIS International, our commitment doesn't end at commissioning. We provide comprehensive post-installation support to ensure your cable manufacturing facility continues to operate at peak efficiency. Our services include process troubleshooting and development, and Quality Assessment & Compliance Audits.
Our team currently offers technical services across various engineering sectors in the USA, Asia, Europe, Africa, and the Middle East. With 25 years of global experience in engineering projects, ABIS's skilled professionals are well-versed in modern work practices and technologies that can help your company save time and reduce costs.
Our mission at ABIS International is to deliver precision-engineered solutions that empower cable manufacturers across the globe. We strive to optimise every stage of cable production— from factory design and utility integration to advanced production lines and compliance auditing—ensuring our clients achieve operational excellence, efficiency, and cost-effectiveness.
Our vision is to become the global partner of choice for the cable manufacturing industry, setting new standards in innovation, sustainability, and technological excellence. We aim to lead the way in modernising production facilities worldwide, enabling manufacturers to stay ahead in a fast-changing market while maintaining the highest levels of quality and reliability.
Our goal is to provide comprehensive support beyond commissioning. From design and installation supervision to troubleshooting and compliance audits, we help clients maximize productivity and performance. With over 25 years of international engineering expertise, ABIS International is dedicated to helping manufacturers save time, reduce costs, and stay competitive.
At ABIS International, we do more than design factory layouts; we engineer high-performance manufacturing environments tailored for the modern cable industry.
At ABIS International, we specialise in the custom design and engineering of Catenary Continuous Vulcanisation (CCV) lines for the cable manufacturing industry.
At ABIS International, we specialise in the design of Utilities Engineering Networks for factories, from cable manufacturing plants to a wide range of industrial facilities.
We specialize in advanced insulation compounds that comply with various specifications, including AEIC, UL, and IEC. Our materials cater to a range of applications, such as high-performance medium voltage EPR cables, both leaded and lead-free.
We follow a structured, engineering-driven methodology to ensure every network is tailored to your facility’s demands:
We analyse your production needs to determine precise utility requirements, from compressed air to chilled water and power, and size your systems accordingly, with future scalability in mind.
Read More
Our designs map out the most efficient routes from utility sources (e.g., chillers, boilers, compressors) to end users across your plant floor, minimising pressure losses and ensuring service continuity
Read More
We choose the optimal layout — ring (loop), radial, or grid — based on your operational priorities, ensuring both reliability and cost-effectiveness
Read More
We engineer pipe and cable networks with accurate sizing, material selection, and thermal insulation for high-performance operation and long-term durability.
Read More
Our systems are designed to minimise energy losses and operating costs. We incorporate recovery technologies like steam condensate return and optimise layouts to reduce pumping loads
Read More
All designs adhere to global and local standards (e.g., ASME, ISO, NFPA) and include critical safety features like emergency shutoffs, pressure reliefs, and fire-resistant installations.
Read More
Our designs include spare capacity and accessible connection points to support future expansions, minimising future downtime and retrofitting costs.
Read MoreHigh-performance manufacturing environments tailored for the modern cable industry
Read MoreEngineered for smooth material flow and space efficiency
Read MoreBuilt with long-term success in mind, the facility features modular expansion zones
Read MoreWe engineer facilities that support not just machines—but the people who run them
Read MoreCompatible with XLPE, rubber, and other cable insulation materials
Read MoreGuiding you seamlessly from innovative design concepts to successful on-site commissioning
Read Morewe specialise in the design of Utilities Engineering Networks for factories, from cable manufacturing plants to a wide range of industrial facilities.
Read Morefocusing on accurate sizing, material selection, and thermal insulation for optimal performance and durability
Read MoreWe evaluate your production needs to determine utility requirements accurately, ensuring systems are sized for future scalability
Read MoreOur Utilities Engineering Design Service covers every critical infrastructure system that powers your plant, including:
ABIS International played an integral role in the CCV Line Tower Design,
contributing technical expertise and project management support throughout its development.
While ABIS International is not primarily a specialist in hanger design, our extensive experience in factory layout and engineering enabled us to provide valuable guidance to our client.
At ABIS International, one of our core international specialities is the design and optimisation of cable factory layouts.
"Thorough, Responsive, Professional. ABIS International understands the demands and obstacles of the tiles industry and consistently provides savvy and efficient consultation and design."
"To refer clients to someone is to trust implicitly that they’ll take care of them to an equal or greater standard than you set for yourself. I frequently refer my clients to ABIS International, knowing that they are in capable hands and will provide them with exceptional service."
"It was very good chance for me to meet ABIS Manager. they are accurate and professional in everything. from the begining to the end of the project. I advice everyone to start working with them."